ご覧いただきありがとうございます。
歴史ある亀ヶ岡団地に、新築戸建が登場します。
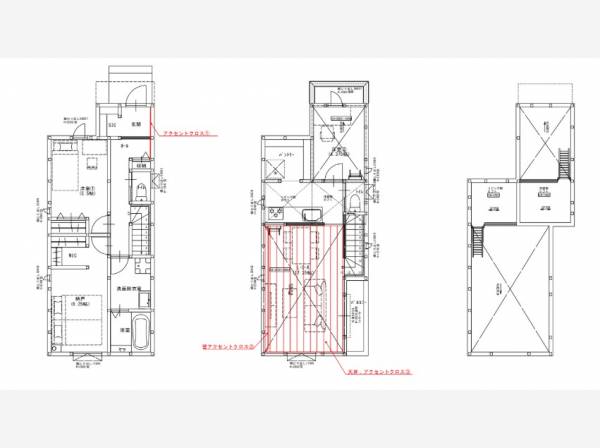
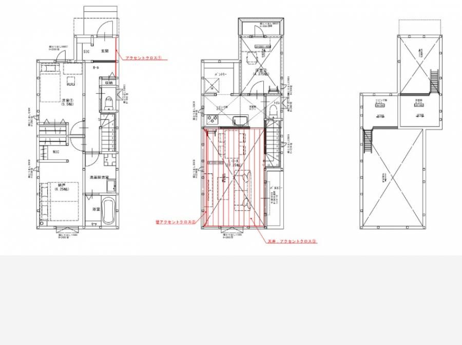
間取りは2SLDKですが、実質3LDKとしてお使いいただける設計です。
1階に水回りをまとめており、マリンスポーツの後にも快適に利用できます。
2階リビングはプライバシーを確保した空間で、パントリーも完備。
家事がスムーズに進む工夫がされています。
逗子マリーナも徒歩圏内で、リゾートの雰囲気を身近に感じられる立地。
湘南でオンもオフも充実した暮らしを始めませんか?
詳細はお気軽にお問い合わせください。
逗子マリーナを望む新築戸建。古き良き港町「小坪」の魅力が広がる住まいです。
~逗子・葉山~
逗子と葉山は神奈川県湘南エリアに位置し、都心からのアクセスが良好で、自然と都市の調和が心地よいエリアです。
逗子の海は浅瀬で波が穏やかなので、SUPやウィンドサーフィンを楽しむ方々に人気があります。高台にある公園からは富士山や江の島を望むことができ、春には桜、秋には紅葉が美しく彩る風景を楽しめます。
さらに、逗子銀座商店街では老舗の店舗や地元ならではのカフェ、グルメが並び、散策するだけでも楽しいひとときを過ごせます。夏には逗子花火大会や映画祭など、多彩なイベントも開催されます。
葉山には美しい海があり、夕焼けと富士山の競演は息をのむような美しさです。海を眺めながらのんびりとした時間を過ごすのも魅力的です。
逗子と葉山、それぞれが異なる魅力を持つ素敵な街です。
| 所在地 | 逗子市小坪1丁目 | 交通 | JR横須賀線 /
逗子駅
バス20分 徒歩1分 京急逗子線 / 逗子・葉山駅 バス22分 徒歩1分 |
|---|---|---|---|
| 種別 | 新築戸建 | 価格 | 3,690万円(税込) |
| 土地面積 | 83.34m² (25.21坪) | 建物面積 | 80.18m² (24.25坪) |
| 間取り | 2LDK + 納戸(6.25帖)+ウォークインクローゼット+シューズインクローク+パントリー 間取り・区画図を取り寄せる | 構造・階建て | 木造 地上2階 |
| 築年月 | 完成済み令和 8年 1月 | 建築確認番号 | 第AI建築確認00-2500348号 |
| 現況 | 完成済み | 私道負担 | |
| 権利形態 | 所有権 | 取引形態 | 仲介 |
| 物件番号 | 86-30086 | ||
| 備考 |
都市ガス・本下水完備 ※納戸(6.25帖)は二面採光です。 引き渡し: 相談 亀ヶ岡公園まで徒歩2分 約140m セブンイレブン逗子久木4丁目店まで徒歩6分 約450m ファミリーマート逗子小坪店まで徒歩9分 約650m |
||










