東宝ハウスの特選物件
新築戸建
3,690万円
逗子市小坪1丁目

逗子マリーナを庭先に。                                   ~古き良き港町『小坪』に佇む新築戸建~

最寄り駅: JR横須賀線 / 逗子駅
土地: 25.21坪
建物: 24.25坪  3LDK 完成予定 令和 8年 1月

30086
※この資料は広告ではございませんので情報が不足しております。詳細情報につきましてはスタッフにお尋ねください。

物件写真

外観パースになります。

物件写真

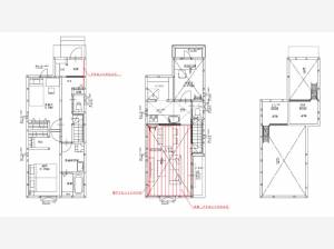
間取り

物件写真

完成がまで今しばらくお待ちください!


ザ・湘南物件タイムズ