ご覧いただきありがとうございます。
今回ご案内するのは、海と山に囲まれた人気の逗子エリア、逗子市桜山2丁目に新しく誕生する新築分譲住宅です。京急逗子線「逗子・葉山」駅から徒歩13分、JR横須賀線「逗子」駅から徒歩15分と、始発駅を含む2路線が利用可能で、駅までの道のりは平坦です。
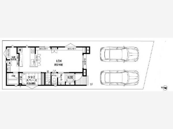
約45坪(149.13㎡)の広々とした敷地に建つこの住宅は、南西道路に面し、陽当たりが良好。角地のような開放感が特徴です。室内には約21帖の広々としたLDKを備え、リビングには約3.5帖のタタミスペースも設置。家族でゆっくり過ごせる空間が広がります。
さらに2階の主寝室は約11.5帖もの広さを持ち、ウォークインクローゼットも完備されています。
性能、広さ、そして立地に優れたこの住まいで、新しい逗子ライフを楽しんでみませんか。ご興味がある方は、お気軽にお問い合わせください。
海と駅へフラットアプローチ。「逗子・葉山」駅徒歩13分。始発2路線利用可の快適逗子ライフ
湘南は、太陽の光に包まれ、自然の豊かさと美しい街並みが調和した、特別な暮らしを楽しめる地域です。
新しい住まいを検討する際には、資金計画やローン、新生活への不安など、さまざまな心配があるかもしれません。
私たちは、そうした不安を一つひとつ丁寧に解消し、お客様が安心して家さがしを進められるよう、心を込めてサポートしています。
住まいの購入は、新しい暮らしの第一歩です。
理想の住まいとの出会いをお手伝いしますので、ぜひお気軽にご相談ください。
| 所在地 | 逗子市桜山2丁目 | 交通 | 京急逗子線 /
逗子・葉山駅
徒歩13分 JR横須賀線 / 逗子駅 徒歩15分 |
|---|---|---|---|
| 種別 | 新築戸建 | 価格 | 6,980万円(税込) |
| 土地面積 | 149.13m² (45.11坪) | 建物面積 | 116.70m² (35.30坪) |
| 間取り | 3LDK + 畳コーナー+ウォークインクローゼット 間取り・区画図を取り寄せる | 構造・階建て | 木造 地上2階 |
| 築年月 | 完成予定令和 8年 5月 | 建築確認番号 | 第25UDI1K建01578号 |
| 現況 | 建築中 | 私道負担 | |
| 権利形態 | 所有権 | 取引形態 | 仲介 |
| 物件番号 | 86-30781 | ||
| 備考 |
都市ガス・本下水完備 引き渡し: 相談 ローソンまで徒歩2分 約160m ユーコープまで徒歩5分 約370m ヨークフーズまで徒歩9分 約700m 第一運動公園まで徒歩10分 約780m |
||










