「逗子6丁目」
逗子エリアの中でも、邸宅が立ち並ぶ閑静な住宅街
逗子海岸まで徒歩8分、周辺には生活を彩るスーパーや飲食店等立ち並び、住環境も良好
「逗子・葉山」駅まで徒歩7分と利便性にも優れてます
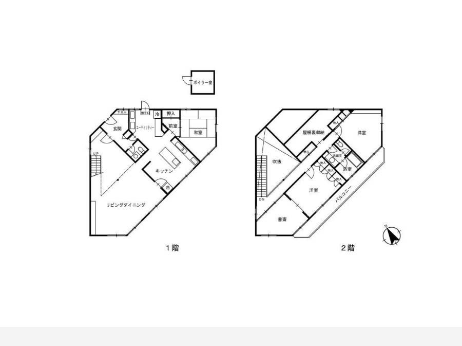
土地面積は403.73㎡、建物面積205.26㎡とゆとりの広さも魅力です
1階に配置された約35帖のLDKは上部吹き抜けていて、開放感に溢れております
昭和48年築ですので、お好みのリノベーションで、素敵な逗子ライフをお過ごしください
ご興味がございましたら、周辺環境と合わせてご案内させて頂きますので、お気軽に私「阿部純大」までお問合せ下さいませ!
~逗子6丁目に佇む和モダンな邸宅~
土地403.73㎡の広さを誇り、リバービューが楽しめる開放的な住環境です。
「逗子・葉山」駅から徒歩7分と生活利便性にも優れています。
~海が身近に感じられる街、逗子市~
朝の肌寒い空気の中、愛犬と一緒に海沿いをゆったりと散歩する時間。
朝日を浴びながら少しずつ体が目覚め、心地よいひとときが流れる。
そんな穏やかなスローライフを楽しめるのが逗子市の魅力です。
お客様のライフスタイルに寄り添いながら、湘南での暮らしをご提案いたします。
■ 無料の住宅ローン相談会を開催中
提携銀行の提供するお得な金利情報もあわせてご案内いたします。
■ ファイナンシャルプランナーによる生涯設計サポートも受付
無理のない借入額や教育費の対策について、専門的なアドバイスを個別にお届けします。事前予約制で、費用は発生しませんので、お気軽にお問い合わせください。
■ ご購入後も安心のサポート体制
確定申告セミナー、住まいの定期点検、ローンや保険の見直し、不動産書類の保管サービスなど、暮らしを支える多様なサービスをご用意。相続や贈与に関するご相談も承ります。
湘南での家さがしの第一歩をぜひお手伝いさせてください。
| 所在地 | 逗子市逗子6丁目 | 交通 | 京急逗子線 /
逗子・葉山駅
徒歩7分 JR横須賀線 / 逗子駅 徒歩10分 |
|---|---|---|---|
| 種別 | 中古戸建 | 価格 | 1億7,500万円 |
| 土地面積 | 403.73m² (122.12坪) | 建物面積 | 205.26m² (62.09坪) |
| 間取り | 3LDK + サービスルーム+ユーティリティ+小屋裏収納 間取り・区画図を取り寄せる | 構造・階建て | 木造 地上2階 |
| 築年月 | 昭和 48年 12月 | 建築確認番号 | |
| 現況 | 居住中 | 私道負担 | |
| 権利形態 | 所有権 | 取引形態 | 仲介 |
| 物件番号 | 82-30291 | ||
| 備考 |
※サービスルームは二面採光です 引き渡し: 相談 業務スーパー逗子店まで徒歩4分 約300m 逗子郵便局まで徒歩5分 約350m 逗子市役所まで徒歩10分 約800m 逗子海岸まで徒歩10分 約750m |
||










