鵠沼海岸や辻堂で湘南ライフを満喫!18帖超のLDKやデザイン階段、並列2台駐車スペースが魅力。
湘南の海と街が身近に感じられる暮らしを提案します。
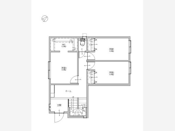
18.2帖の広々としたLDKには、開放的なデザイン階段やセメント化粧パネルを採用し、遊び心あふれる空間を演出。
並列で2台駐車可能なスペースがあり、サーフボードや自転車のメンテナンスも快適に行えます。
省エネ性能に優れたZEH水準の住まいで、家事をサポートする設備も整っています。
お問い合わせをお待ちしております。
We Like SHONAN!~住まいのもっと先へ~
湘南の街で、あなたらしい暮らしを見つけてみませんか?
理想のライフスタイルは人それぞれ。私たちは、「こんな暮らしがしたい」という夢や、「納得できる形で不動産を売却したい」という希望、そのどちらにも寄り添い、湘南での家さがし、売却、住み替えのサポートを行っています。
【購入】理想の住まいを地元のプロと一緒に
湘南で築いてきた36年の経験と豊富な情報をもとに、地元に精通したスタッフがあなたの希望に合った物件をご提案いたします。
資金面でも、毎月の返済額や提携銀行の優遇金利についてわかりやすくご説明。教育資金や将来の計画を含めた「無理のない資金計画」を専門家と共に立てることができます。
【売却】今の家の価値を最大限に引き出すお手伝い
「この家はいくらで売れるのだろう?」「住み替えたいけれど、買うのと売るの、どちらが先?」といった疑問や不安をお持ちの方も、ぜひご相談ください。
市場の動向を熟知したスタッフが、あなたの大切な資産の価値を丁寧に査定します。また、専門チームによるウェブ広告やドローン・動画を使った魅力的な演出によって、湘南の街並みとともに物件の価値をより効果的に伝えます。
売却から新居への引越しまで、スムーズに進められるプランをご提案します。
安心のサポート体制
アフターサポート専任部署(TOHOHOUSE NEXT)が、住み始めた後も安心のサービスをご提供します。
『TOHO HOUSE CLUB』では以下のサービスを用意しています:
・確定申告の無料セミナー
・定期点検や重要書類のデジタル保管
・保険やローンの見直し、相続・贈与の専門相談
・暮らしを豊かにする特別優待サービス
住まいを「買う」ときも「売る」ときも、そして住み始めた後も、ぜひお気軽にご相談ください。
| 所在地 | 藤沢市辻堂太平台1丁目 | 交通 | 小田急江ノ島線 /
鵠沼海岸駅
徒歩19分 JR東海道本線 / 辻堂駅 徒歩20分 |
|---|---|---|---|
| 種別 | 新築戸建 | 価格 | 6,780万円(税込) |
| 土地面積 | 115.01m² (34.79坪) | 建物面積 | 91.90m² (27.79坪) |
| 間取り | 3LDK + ウォークインクローゼット 間取り・区画図を取り寄せる | 構造・階建て | 木造 地上2階 |
| 築年月 | 完成予定令和 8年 8月 | 建築確認番号 | 第2025SBC-確02982H号 |
| 現況 | 更地 | 私道負担 | |
| 権利形態 | 所有権 | 取引形態 | 仲介 |
| 物件番号 | 91-31311 | ||
| 備考 |
都市ガス・本下水完備 引き渡し: 相談 辻堂小学校まで徒歩5分 約400m 湘洋中学校まで徒歩15分 約1200m 業務スーパーまで徒歩7分 約550m ローソンまで徒歩9分 約650m サンドラッグまで徒歩10分 約800m 八部公園まで徒歩11分 約850m |
||










