静かな環境と便利さが羽鳥で実現する暮らし
閑静ながら生活利便性に優れた羽鳥エリア。
辻堂駅まで徒歩圏内であり、利便性と落ち着いた住環境が調和した魅力的な場所です。
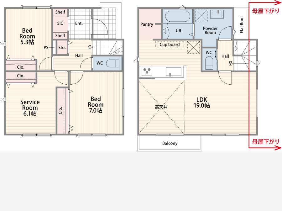
その中で、北東角地の開放感を活かした新築戸建てが誕生します。間取りは、2SLDKにパントリーとSICを備え、機能性と快適性を兼ね備えた設計です。
建物はまだ完成前ですが、プランの詳細説明やプレゼンも可能です。ぜひ現地で周辺環境とあわせてご確認ください。お気軽にお問い合わせください。
辻堂駅まで徒歩圏内であり、利便性と落ち着いた住環境が調和した魅力的な場所です。
その中で、北東角地の開放感を活かした新築戸建てが誕生します。間取りは、2SLDKにパントリーとSICを備え、機能性と快適性を兼ね備えた設計です。
建物はまだ完成前ですが、プランの詳細説明やプレゼンも可能です。ぜひ現地で周辺環境とあわせてご確認ください。お気軽にお問い合わせください。
~湘南の地に住む~
「湘南の海と共に過ごす、あなたの新しいライフスタイル。」
毎日が特別な日になる湘南エリアの住環境。美しいビーチ、心地よい風、豊かな自然に囲まれた生活は、ただの夢ではありません。今こそ、あなたにぴったりの物件を見つけ、理想の生活を手に入れましょう。海の近くでの暮らしを実現するチャンスです。
「湘南で、新しい自分を発見しませんか?」
湘南のワクワクする街並み、洗練されたカフェ、落ち着いた暮らしがあなたを待っています。毎日の生活が今よりもっと豊かになる、このエリアでの新しいスタートを切りませんか?
「海を望む暮らし、今すぐ手に入れましょう。」
湘南の美しい海とともに過ごす日々は、贅沢な空間と理想的な立地が、あなたの暮らしをさらに輝かせます。今すぐ、その一歩を踏み出して、湘南で新たな人生を始めましょう。
湘南の地でどんな暮らしを叶えたいか私達に聞かせてください。
湘南に住み、湘南で生きる、湘南の不動産エージェント
東宝ハウス湘南だからこそ出来ることがあります!
・購入資金はどうやって借りるの?
・今の自宅を売却して購入したい!
・土地を買って理想の注文住宅を!
・とにかく陽当りのいい立地を!
・駅近くのマンションを!
お客様のニーズは様々、不動産の売却、購入はケース・バイ・ケースです。
お客様一人ひとりの叶えたいに寄り添いサポートさせていただきます。
湘南ライフの第1歩目をまずはここから、ご相談ください。
| 所在地 | 藤沢市羽鳥5丁目 | 交通 | JR東海道本線 /
辻堂駅
徒歩20分 JR東海道本線 / 辻堂駅 バス5分 徒歩1分 |
|---|---|---|---|
| 種別 | 新築戸建 | 価格 | 5,990万円(税込) |
| 土地面積 | 116.28m² (35.17坪) | 建物面積 | 93.57m² (28.30坪) |
| 間取り | 2LDK + サービスルーム(6.1帖)+シューズインクローク+パントリー 間取り・区画図を取り寄せる | 構造・階建て | 木造 地上2階 |
| 築年月 | 完成予定令和 8年 2月 | 建築確認番号 | 第25KAK建確01859号 |
| 現況 | 建築中 | 私道負担 | |
| 権利形態 | 所有権 | 取引形態 | 仲介 |
| 物件番号 | 89-30146 | ||
| 備考 |
都市ガス・本下水完備 ※サービスルーム(6.1帖)は二面採光です 引き渡し: 相談 羽鳥小学校まで徒歩7分 約500m 羽鳥中学校まで徒歩4分 約300m 羽鳥四丁目公園まで徒歩1分 約50m ファミリーマートまで徒歩5分 約350m 湘南モールフィルまで徒歩8分 約600m 湘南モールフィル郵便局まで徒歩9分 約700m クリエイトS·D鵠沼神明店まで徒歩11分 約850m |
||










