【辻堂駅まで徒歩16分】
辻堂を楽しむデザイナーズハウスが登場
湘南の海が見える家サイトをご覧いただき、ありがとうございます。
辻堂駅から徒歩16分、利便性に優れた立地に誕生する新築邸宅をご紹介します。駅からは分かりやすい一本道で、幅9mの広々とした前面道路により、お車の出し入れも快適です。
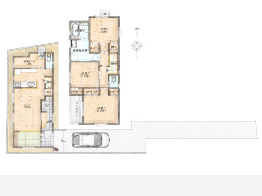
間取りは3LDKにフリースペースをプラス。湘南ライフを楽しむための拠点としていかがでしょうか。ぜひ一度現地をご覧ください。お問い合わせをお待ちしております。
辻堂駅から徒歩16分、利便性に優れた立地に誕生する新築邸宅をご紹介します。駅からは分かりやすい一本道で、幅9mの広々とした前面道路により、お車の出し入れも快適です。
間取りは3LDKにフリースペースをプラス。湘南ライフを楽しむための拠点としていかがでしょうか。ぜひ一度現地をご覧ください。お問い合わせをお待ちしております。
湘南で「理想の暮らし」を始めてみませんか。
一度は体験してみたいと思うような特別なライフスタイルが、湘南には広がっています。
波の音や太陽の輝き、潮の香りに包まれ、木々の間から差し込む木漏れ日や鳥のさえずりが響き渡る場所。歴史が息づく街並みと洗練された雰囲気、そしてどこまでも広がる海や豊かな自然が、ここにはあります。湘南ならではの風景とゆったりとした時間に魅了され、多くの方が新しい生活を求めて訪れるのです。
マイホームの購入は、人生の中でも特別なイベントです。夢や希望に胸を膨らませる反面、購入資金やローンについての不安、新しい土地での生活への心配、注文住宅を建てる際の依頼先の選定など、さまざまな疑問を抱える方も多いでしょう。
私たち東宝ハウスグループでは、お客様の不安を一つずつ丁寧に解消しながら、安心して家さがしを進められるよう全力でサポートいたします。
「~住まいのもっと先へ~」
マイホームの購入はゴールではなく、そこから始まる新しい暮らしが本当のスタートです。お客様が思い描く明るく楽しい生活を一緒に描き、ご提案していきたいと考えています。
まずは湘南の空気を肌で感じてみませんか。きっと、ここで暮らす未来が自然と見えてくることでしょう。
ご家族のこれからの幸せのために、私たちはお客様と理想の住まいをつなぐお手伝いを誠心誠意させていただきます。どうぞお気軽にご相談ください。皆様からのご連絡をお待ちしております。
| 所在地 | 茅ヶ崎市菱沼3丁目 | 交通 | JR東海道本線 /
辻堂駅
徒歩16分 JR東海道本線 / 辻堂駅 バス2分 徒歩4分 |
|---|---|---|---|
| 種別 | 新築戸建 | 価格 | 5,480万円(税込) |
| 土地面積 | 129.68m² (39.22坪) | 建物面積 | 91.64m² (27.72坪) |
| 間取り | 3LDK + ユーティリティ+畳コーナー+シューズインクローク 間取り・区画図を取り寄せる | 構造・階建て | 木造 地上2階 |
| 築年月 | 完成予定令和 8年 5月 | 建築確認番号 | |
| 現況 | 更地 | 私道負担 | |
| 権利形態 | 所有権 | 取引形態 | 仲介 |
| 物件番号 | 87-30607 | ||
| 備考 |
都市ガス・本下水完備 引き渡し: 相談 小和田小学校まで徒歩3分 約240m 赤羽根中学校まで徒歩13分 約1040m |
||
| その他要件 |
土地面積には路地状部分約30%を含みます |
||










