東宝ハウスの特選物件
新築戸建
6,890万円
藤沢市羽鳥4丁目

【『辻堂』駅生活圏内・藤沢羽鳥4丁目新築戸建】~女性設計士こだわりの「生活が豊かになる間取り」~

最寄り駅: JR東海道本線 / 辻堂駅
土地: 38.42坪
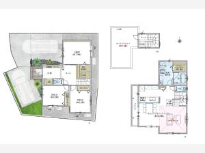
建物: 31.05坪  3LDK 完成予定 令和 8年 5月

30790
※この資料は広告ではございませんので情報が不足しております。詳細情報につきましてはスタッフにお尋ねください。

物件写真

~女性設計士こだわりの「生活が豊かになる間取り」~

物件写真

間取り

物件写真

現地写真


ザ・湘南物件タイムズ